



















秋田県秋田市寺内児桜二丁目10-5
坪単価/79,271円
JR奥羽本線泉外旭川
徒歩時間 31分 徒歩距離 2500m
| 築年月 | 1976年04月 |
|---|---|
| 新築/中古 | 中古 |
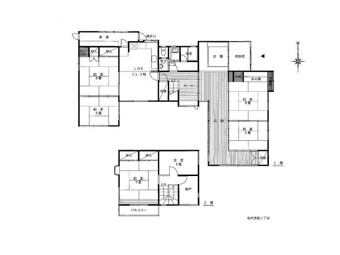
| 面積 | 165.32㎡ |
| 建物構造 | 軽量鉄骨 |
| 敷地全体面積 | 392.02㎡ |
| 延べ床面積 | 165.32㎡ |
| 取引態様 | 一般 |
| 引渡/入居時期 | 即時 |
| 現況 | 空家(土地:古屋あり) |
| 地目 | 宅地 |
| 用途地域 | 第一種低層住居専用 |
| 都市計画 | 市街化区域 |
| 地勢 | 高台 |
| 土地面積 | 392.02㎡ |
| 面積計測方式 | 公簿 |
| セットバック | 無 |
| 建ぺい率 | 40% |
| 容積率 | 60% |
| 土地権利 | 所有権 |
| 接道方向1 | 北 |
| 接道間口1 | 29 |
| 接道種別1 | 公道 |
| 接道幅員1 | 4.0 |
| 位置指定道路1 | 無 |
| 国土法届出 | 不要 |